



















| リフォーム費用内訳 | |
| 仮設・解体工事 | 1,000,000 円 |
| 木工事 | 2,640,000 円 |
| 内装工事 | 630,000 円 |
| 建具工事 | 630,000 円 |
| 設備機器工事 | 3,000,000 円 |
| 電気・給排水工事 | 1,900,000 円 |
| その他工事・諸経費・消費税等 | 1,000,000 円 |
| 合計 | 10,800,000 円 |






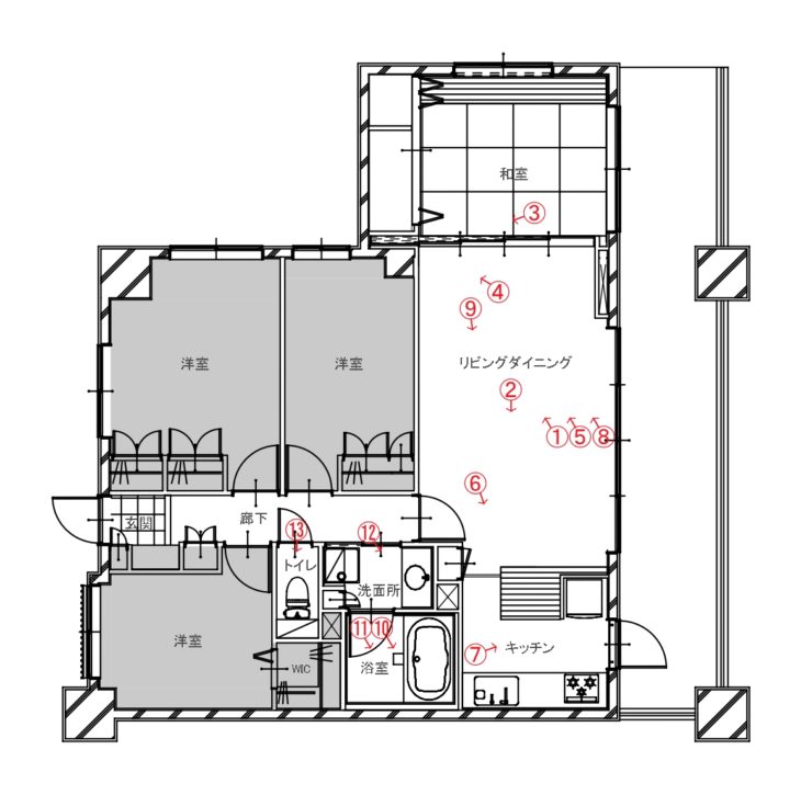
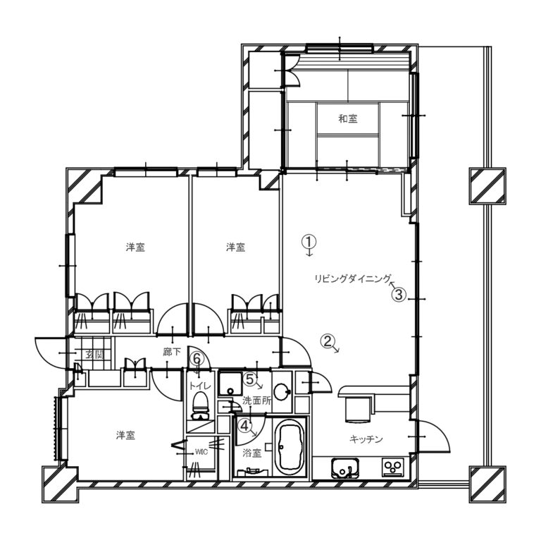
テーマは「解放感と掃除のしやすさ」。
水廻りの老朽化をきっかけにリノベーションをご検討されたN様。
キッチンとLDを隔てる間仕切り壁や収納、和室の戸を納める袖壁が、室内の開放感を損ねているとも感じていたそうです。
インテリアも好みに合わせた変更をご希望でした。
間取りの変更はないものの、キッチンとダイニングを間仕切る壁や収納を造り変え、和室の戸が納められていた袖壁を撤去して別の場所に戸袋を造作することで、LDK+和室が大幅に開放的になりました。
キッチンは、表に物が出しっ放しにならない収納計画や造作カウンターのおかげで、お掃除はラクラク。
洗面化粧室やトイレの壁は防水パネルを貼ることでお手入れをしやすくしました。
お風呂は棚などを一切取り付けずに、シャワーフックなども含めて必要なものは全てマグネット式のものを採用し、お手入れのしやすさを追求。
床の無垢材やウィンドウトリートメント、照明計画もこだわり抜き、居心地よい空間が誕生しました。
| 使用商品 | |
| ユニットバス | TOTO サザナ |
| キッチン | トクラス コラージア |
| カップボード | トクラス コラージア |
| 洗面台 | TOTO エスクア |
| トイレ | TOTO ネオレスト+ワンデーリモデル手洗器 |
| 建具 | パナソニック 間仕切り開閉壁 |
| フローリング | 朝日ウッドテック ライブナチュラルプレミアム スタンダード オークN-45° |
| 壁パネル | アイカ工業 セラール |